1
/
의
3
スガツネ工業(株)
SUGATSUNE (170041020) HG-LSW-154R 올 스테인레스 스틸 중량 깃발 경첩 HG-LSW-154R 1 개
SUGATSUNE (170041020) HG-LSW-154R 올 스테인레스 스틸 중량 깃발 경첩 HG-LSW-154R 1 개
정가
¥11,616
정가
할인가
¥11,616
단가
/
단위
배송료는 결제 시 계산됩니다.
픽업 사용 가능 여부를 로드할 수 없습니다.
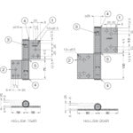
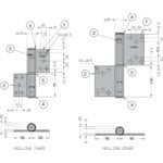
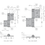
카탈로그 품번:HG-LSW-154R 특징:●6mm 두께의 스테인리스강을 사용하고 있습니다. ● 특수 링(함유 베어링)으로 부드럽게 움직입니다. ●의성 첨부입니다. 용도:●대형 도어, 문문, 그 외 중량물의 회전 기구 등 사양:●전체 길이(mm):75 ●폭(mm):116 :나사(별매) 재질/마무리: ●스테인리스(SUS304) 주의: ●내하중은 3개 사용 시의 값입니다. 산출 조건에 대해서는 내하중의 사고방식을 봐 주세요.
전체 세부 정보 보기
